农村新款一层平房设计图,造型新颖不落俗套,大气实用百年不落伍
农村新款一层平房设计图,造型新颖不落俗套,大气实用百年不落伍
现在回农村盖房子,住的舒服是一方面,面子是更重要的一方面!落叶归根、衣锦还乡这不仅是个人心中的执念,也是农村人几百年的惯性思维!奋斗多年,如果不回农村老家建一栋像样的房子,别人肯定会觉得你混得不咋样!今天给大家推荐三款农村最新款一层平房设计图,方正大方,而且格调迥然,绝对有面子!
户型一:农村一层平房设计图,面宽22米左右,大户型别墅设计
图纸介绍:这款一层平房占地233平米,面宽22米左右,大户型别墅设计,外观造型错落有致,颜色搭配温馨十足,建一栋在老家无人不夸。
占地面积:21.82m*11.76m,233.994平方米左右;
建筑层高:一层;
建筑高度:6.698米(含屋顶);
设计功能:
一层户型:客厅、厨房、餐厅、卧室X4、卫生间、卧室(带卫生间)X2;


一层平房设计图
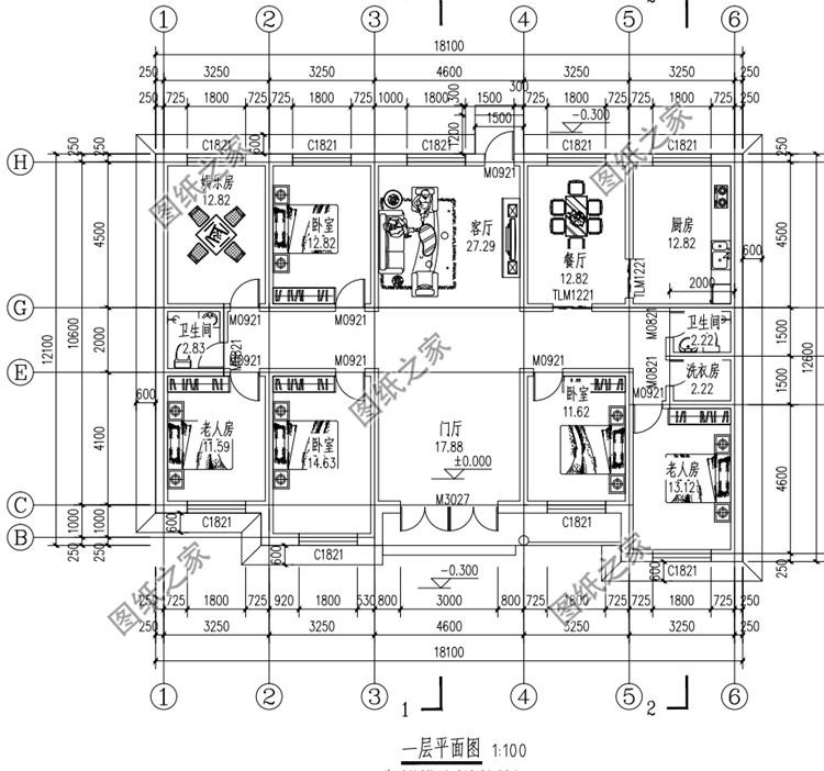
户型二:农村一层平房设计图,占地210平米,养老房还是一层好
图纸介绍:这款乡下一层占地210平米,户型方正,前设罗马柱,前后四窗通透,便于采阳通风。
占地面积:18.1m*12.1m,210平方米左右;
建筑层高:一层;
建筑高度:6.6米(含屋顶);
设计功能:客厅、餐厅、厨房、卧室×2、老人房×2、卫生间×2、洗衣房、棋牌室;




一层平房设计图
户型三:农村一层自建别墅设计图,仿古设计,外观古色古香
图纸介绍:这款中式一层仿古自建房占地168平米,灰墙青瓦,外观中式韵味十足,古典古韵,三间卧室的设计,还带杂物间,不管从哪个角度看,这栋房子都属于很舒适的类型;除去居室空间外,剩余最大的面积就是客厅了,相信生活在这样一栋房子里,定会让人感到无比舒心!
占地面积:15.6m*10.8m,168.48平方米左右;
建筑层高:一层;
建筑高度:6.63米(含屋顶);
设计功能:
一层户型:客厅、厨房、餐厅、卧室x3、卫生间、杂物间(地下酒窖);


一层平房设计图
不知道有没有喜欢平房的朋友呢?喜欢收藏。本文由图纸之家官网原创,欢迎关注,带你一起长知识!